Model baju dari majalah Ummi edisi Januari 2017.
Baju yang akan saya buat bukanlah desain saya sendiri. Saya lihat di sebuah majalah. Majalah biasa, bukan majalah fashion. Aslinya baju gamis, tapi saya bikin blouse. Saya hanya nyontek modelnya. Jadi jangan sebut saya fashion design ya. :D. Saya hanya praktisi. Dulu tidak sekolah SMK atau sekolah fashion. Mungkin karena ibu saya bukan seorang penjahat alias penjahit, saya jadi ikut-ikutan bisa menjahit. Biasalah bantu-bantu ibu yang bagian lurus-lurusnya. Awalnya tidak langsung belajar pola. Dulu belajar menjalankan mesin jahit genjot, kemudian meningkat mencoba mesin jahit dinamo. Lulus SMA langsung terjun menjadi buruh penjahit konveksi. Selama menjadi buruh saya mengambil les menjahit gratisan tingkat dasar di kecamatan Pekalongan Timur.
Pada waktu les, saya belajar pola dasar. Lulus dari les, pelajaran dari gurunya jarang saya gunakan untuk praktik membuat pola. Saya beberapa kali minta dibikinkan pola ke teman penjahit karena pernah membuat baju sendiri hasilnya kekecilan. Saya kasih upah Rp. 15.000; per pola baju. Dipikir-pikir daripada saya membayari orang untuk pola baju saya sendiri, mendingan saya paksa diri saya untuk membuat pola baju sendiri.
Alhamdulillah sekarang saya PD membuat pola baju sendiri. Prinsip membuat pola bagi saya mending kebesaran daripada kekecilan. Karena jika baju kita kebesaran, maka bisa dikecilkan. :D. Saya akan berbagi cara membuat pola baju.
Pertama kita siapkan kertas atau bahan lain untuk membuat pola. Saya menggunakan kertas bekas printer yang tidak terpakai. Teman-teman yang tidak punya koran di rumah atau males mau beli koran dan kertas manila, silahkan membuat pola dengan kertas bekas yang terdapat dirumah. Usahakan kertas bekas yang akan kita buat pola tidak ada tulisan ayat Al Qur'an. Kebetulan kertas bekas bimbingan skripsi masih banyak di rumah saya dan tidak terpakai, saya manfaatkan saja dengan menggabungkan beberapa kertas. Teman-teman bisa menggunakan lem atau plaster.
Sayang kalau dibuang begitu saja, gunakan dulu sebelum dibuang.
Kita ukur dulu badan kita, kemudian kita tuangkan di atas kertas. Kita bikin pola awalnya dulu.
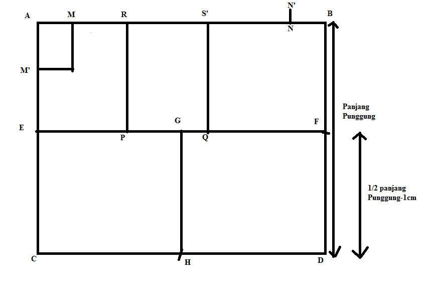
Polanya kita sempurnakan:
Keterangan Pola:
EP =1/2 Lebar dada
AR = EP
FQ = 1/2 Lebar Punggung
BS' = FQ
AM' = 1/10 AB + 3 cm
AM = AM' - 1 cm
BN = AM
NN' = 2 cm
Pola di atas dilengkapi seperti gambar berikut:
Keterangan Pola:
E' = tengah 2M'E -> EE' = E'M'-> E'P' = 1/2 lebar dada
F' = tengah 2FB -> FF' = F'B -> F'Q' = 1/2 lebar punggung
Titik R turun 4 cm dari garis AB
Buat garis bahu MR = lebar bahu
Titik S' turun 2 cm dari garis AB
Buat garis bahu N'S = lebar bahu
Hubungkan titik P' dengan titik G
Hubungkun titik Q' dengan titik G
Buat kerung lengan badan depan dan belakang
Buat Kerung leher badan depan M'M dan kerung leher badan belakang BN'
Gambar pola yang lebih lengkap bisa dilihat di bawah. Saya tidak menggunakannya pola yang ada di bawah ini, karena ribet. Baju yang saya buat tidak ada kupnat depan dan belakang. Baju yang saya buat lurus-lurus saja di bagian sisinya. Paling saya bengkokkan sedikiiiiiit saja biar kelihatan jahitan halus.:D
Ini ukuran pola baju saya :
Lebar Bahu = 12 cm
Lingkar Badan = 86 cm
Lebar Dada = 34 cm
Lebar Punggung = 36 cm
Lingkar Pinggang = 90 cm
Tinggi Punggung = 44 cm
Kita tuangkan di gambar pola :
Bagian pinggulnya digambar juga :
Kita buat lengkung bagian sampingnya. Bagian lengkung ini dikira-kirakan sendiri.
Polanya kita sempurnakan:
EP =1/2 Lebar dada
AR = EP
FQ = 1/2 Lebar Punggung
BS' = FQ
AM' = 1/10 AB + 3 cm
AM = AM' - 1 cm
BN = AM
NN' = 2 cm
Pola di atas dilengkapi seperti gambar berikut:
Keterangan Pola:
E' = tengah 2M'E -> EE' = E'M'-> E'P' = 1/2 lebar dada
F' = tengah 2FB -> FF' = F'B -> F'Q' = 1/2 lebar punggung
Titik R turun 4 cm dari garis AB
Buat garis bahu MR = lebar bahu
Titik S' turun 2 cm dari garis AB
Buat garis bahu N'S = lebar bahu
Hubungkan titik P' dengan titik G
Hubungkun titik Q' dengan titik G
Buat kerung lengan badan depan dan belakang
Buat Kerung leher badan depan M'M dan kerung leher badan belakang BN'
Gambar pola yang lebih lengkap bisa dilihat di bawah. Saya tidak menggunakannya pola yang ada di bawah ini, karena ribet. Baju yang saya buat tidak ada kupnat depan dan belakang. Baju yang saya buat lurus-lurus saja di bagian sisinya. Paling saya bengkokkan sedikiiiiiit saja biar kelihatan jahitan halus.:D
Sumber foto : Buku Belajar Sendiri Menjahit Busana untuk Pemula.
Lebar Bahu = 12 cm
Lingkar Badan = 86 cm
Lebar Dada = 34 cm
Lebar Punggung = 36 cm
Lingkar Pinggang = 90 cm
Tinggi Punggung = 44 cm
Kita tuangkan di gambar pola :
Bagian pinggulnya digambar juga :
Pola dasarnya sudah jadi, Sekarang kita beralih ke pola depan. Karena baju yang saya buat modelnya seperti di gambar bawah ini, maka pola depan harus dipecah.
Nanti pola depan dipecah bagian atas dan bawahnya.
Hasilnya nanti seperti ini. Jangan lupa tambahkan 5 cm untuk persiapan kancing.
Untuk lengan, saya menggunakan pola di bawah ini :
Sumber foto : Buku Belajar Sendiri Menjahit Busana untuk Pemula
Keterangan:
KJ : Panjang lengan sampai pergelangan
KZ : Tinggi puncak = 1/4 lebar kerung lengan +2 atau 3 cm
KY : Panjang Lengan sampai siku
NM : Lingkar siku
ST : Lingkar Pergelangan
KR : KH = 1/2 Lingkar kerung dengan - 1/2 cm
Ukuran lingkar pergelangan dan lingkar siku saya samakan karena bagian pergelangannya tidak ada kancing hidup. Hal ini saya lakukan agar tidak kesulitan membasuh lengan ketika wudhu. Selesaiiii. Selamat mencoba teman-teman. :)

















ruwett tapi kayaknya seru mba. aku liat2 mesin brother di matahari jd pengen beli
BalasHapusmbk innayah itu bisa jahit pok?
BalasHapusandai sy bs menjahit...
BalasHapusJangan berandai-andai. Segera praktikkan
Hapus